PADIGLIONE DELLA CINA per Milano EXPO 2015








Testo e immagini per gentile concessione FM Ingegneria Spa

Tsinghua University in collaborazione con lo studio di progettazione studio Link-arc di NewYork ha progettato ‘il padiglione della Cina’ per l’EXPO Milano 2015 “Land of Hope”. La struttura del tetto ondulato è pensata come un elemento galleggiante al di sotto del quale prendono forma gli spazi per i programmi culturali ed espositivi .Il padiglione cinese è il secondo più grande padiglione dopo quello italiano ed è caratterizzato da una struttura complessa ma affascinante.









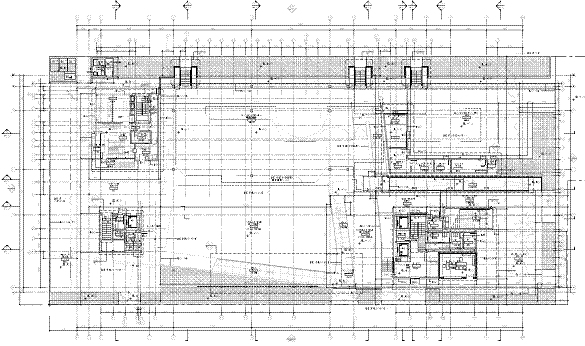
L’edificio ha una pianta rettangolare dimensioni 35.0x74.0m e copertura curvilinea che raggiunge quota massima 17.0m. Le seguenti figure illustrano la complessa geometria dell’edificio.














Pianta piano terra




Sezione longitudinale




Sezione trasversale




Sezione trasversale


Le fondazioni sono di tipo superficiale: platea spessore costante 600mm e travi di sezione 450x600mm e 3000x600mm; l’estradosso delle fondazioni si attesta a quota -1.950m. Pareti in calcestruzzo armato spessore 300mm e pilastri sezione 750x750mm si elevano fino a quota -0.300m





Pianta delle fondazioni




Lavori di costruzione delle fondazioni





Le elevazioni sono a telaio con controventi a croce e controventi a “V”. Le colonne sono in profili HEM220, HEM300, tubi 200x200x12, tubi 150x150x12.5 . I controventi sono in profili UPN180 singoli quando sono a croce, ed UPN180 doppi quando sono a “V”. Quando a vista, i controventi sono in fune d’acciaio diametro 20mm. Gli impalcati sono a graticcio di travi HEA300, HEA340, HEA550 e HEB800. Nella figura sopra si colgono in colore azzurro le colonne HEM300, in colore blu le colonne HEM220, in colore rosso e verde le colonne in tubi 200x200x12mm. I controventi UPN180 sono in grigio. Le travi di impalcato HEA300 sono in azzurro, le HEA340 in verde, le HEA550 in giallo e le HEB800 in arancione Gli impalcati hanno lamiera grecata con getto collaborante in calcestruzzo armato; le travi sono tutte piolate.





Intradosso solaio auditorium




Montaggio solaio auditorium




Intradosso solaio ristorante




Getto solaio ristorante




Struttura in acciaio principale della copertura


La copertura ha un’orditura principale in acciaio, sulla quale si appoggiano le travi curvilinee in legno; queste ultime comunemente chiamate “rafters”. Tutte le travi curvilinee, sia in acciaio che in legno, sono trasversalmente collegate dagli arcarecci, comunemente chiamati “purlin”. Si evincono nella figura sopra i rafter gialli in acciaio, i rafter verdi, i purlin blu, verdi e viola. I rafter sono cassoni di sezione 200x560mm; i purlin blu e verdi sono cassoni di sezione 200x460mm; i purlin viola sono cassoni di sezione 200x360mm. Le lamiere per la composizione dei cassoni sono generalmente di spessore 15mm; fanno eccezione le lamiere delle ali dei rafter gialli che hanno spessore 40mm. Hanno spessore 40mm anche le ali dei pulin verdi. Infine il purlin azzurro è composto da lamiere spessore 35mm. I rafter in legno hanno sezione 200x560mm, ad eccezione delle estremità dell’edificio dove hanno sezione 200x400mm. I purlin hanno sezione 200x460mm, ad eccezione delle campate d’estremità dove hanno sezione 200x340mm.





Struttura lignea della copertura




La stabilizzazione del graticcio di copertura è ottenuta con inserimento di croci di controventamento in barre tonde lisce messe in carico con tenditore. I diametro dei controventi è 22mm, 33mm e 39mm.





Controventi di copertura:
in blu tondi di diametro 22mm; in rosso tondi di diametro 33mm; in giallo tondi di diametro 39mm.



Foto del cantiere



Avanzamento cantiere al 6 Febbraio 2015






Alcune rappresentazioni dei modelli di calcolo in Straus7




















Per inviare un messaggio: hsh@iperv.it